
COMPRAR
Zonas
Tipo
Precio€
Dormitorios
TamañoM2

Ibiza
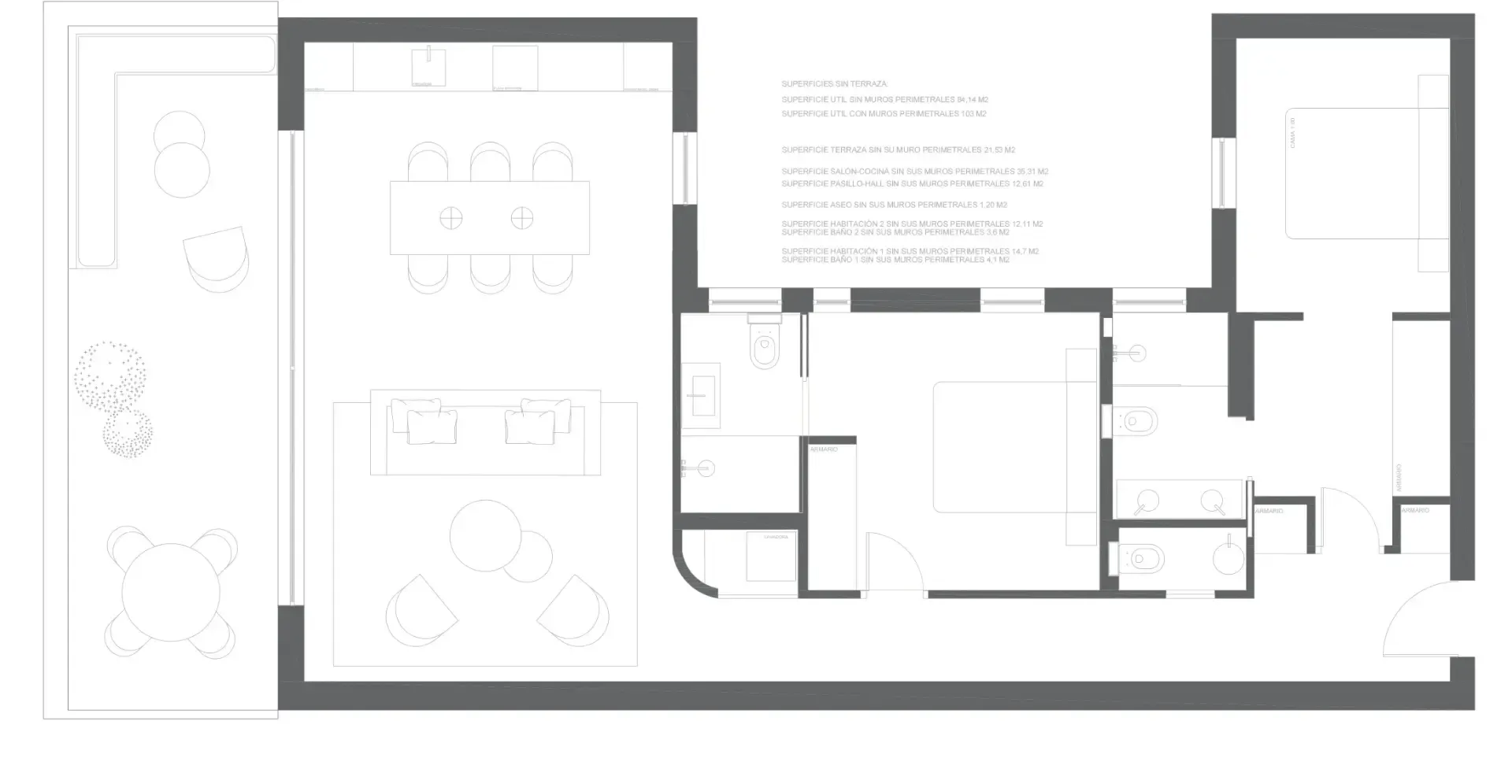
102 m2 / 2 Habitaciones
REF: ret_rodrigo_0001
1.499.000 €
Olisson Club presenta este exclusivo ático reformado a estrenar con amplia terraza, situado a escasos metros del emblemático Parque del Retiro.
La vivienda, recién reformada y amueblada con excelente gusto y altas calidades, cuenta con 102 m² construidos y una magnífica terraza privada de más de 20 m² con agradables vistas despejadas. Un espacio ideal para disfrutar del aire libre durante todo el año, que aporta una luminosidad excepcional y una sensación de amplitud única.
Dispone de dos amplios dormitorios en suite, ambos con armarios y uno de ellos con vestidor, además de un elegante aseo de cortesía para invitados. El salón-comedor, luminoso y acogedor, se integra con una moderna cocina totalmente equipada, creando un espacio abierto y funcional, con salida directa a la terraza.
Ubicado en finca con ascensor, en una de las zonas más demandadas de Madrid, junto al parque y con excelente conexión a la red de transporte público, así como una amplia oferta de comercios, restauración y servicios. Un ático perfecto para quienes buscan diseño, confort y calidad de vida en el corazón de la ciudad..