
COMPRAR
Zonas
Tipo
Precio€
Dormitorios
TamañoM2

Malasaña - Universidad
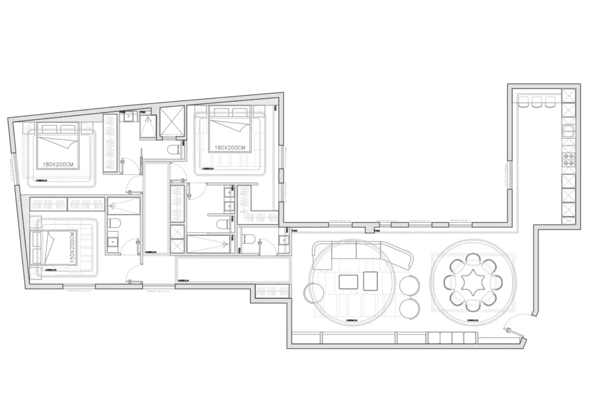
176 m2 / 3 Habitaciones
REF: uni175VMA
16.750.000 €
Olisson Club presenta este exclusivo piso completamente reformado con altas calidades, situado en una de las zonas más dinámicas y con mayor personalidad del centro de Madrid: el barrio de Malasaña.
La vivienda, de 176 m², destaca por su amplitud, luminosidad y una distribución muy equilibrada, pensada para ofrecer confort, funcionalidad y una estética contemporánea. La zona de día se articula en torno a un amplio y luminoso salón, con grandes ventanales que permiten una excelente entrada de luz natural, generando un espacio ideal tanto para el descanso como para la vida social. La cocina, integrada en el conjunto, combina diseño y practicidad, con materiales de alta gama y una cuidada elección de acabados.
La zona de descanso está compuesta por tres dormitorios, todos ellos de generosas dimensiones, concebidos como espacios tranquilos y confortables. La vivienda dispone de tres baños completos y un aseo de cortesía, todos ellos con un diseño elegante y materiales cuidadosamente seleccionados, que refuerzan la sensación de calidad y sofisticación en cada estancia.
La reforma integral ha sido ejecutada con especial atención al detalle: carpintería interior y exterior de alta calidad, sistema de iluminación con luces directas e indirectas, climatización eficiente y una selección de materiales que aportan calidez y atemporalidad al conjunto.
Ubicado en una finca clásica de 1948, el edificio se encuentra en excelente estado de conservación y cuenta con un portal representativo y ascensor.
Rodeado de una amplia oferta de comercios, restaurantes, cafés y espacios culturales, y perfectamente comunicado mediante transporte público, este inmueble representa una oportunidad excepcional tanto como residencia habitual como inversión en una de las zonas con mayor demanda y proyección del centro de Madrid.