
COMPRAR
Zonas
Tipo
Precio€
Dormitorios
TamañoM2

Gaztambide - Arapiles
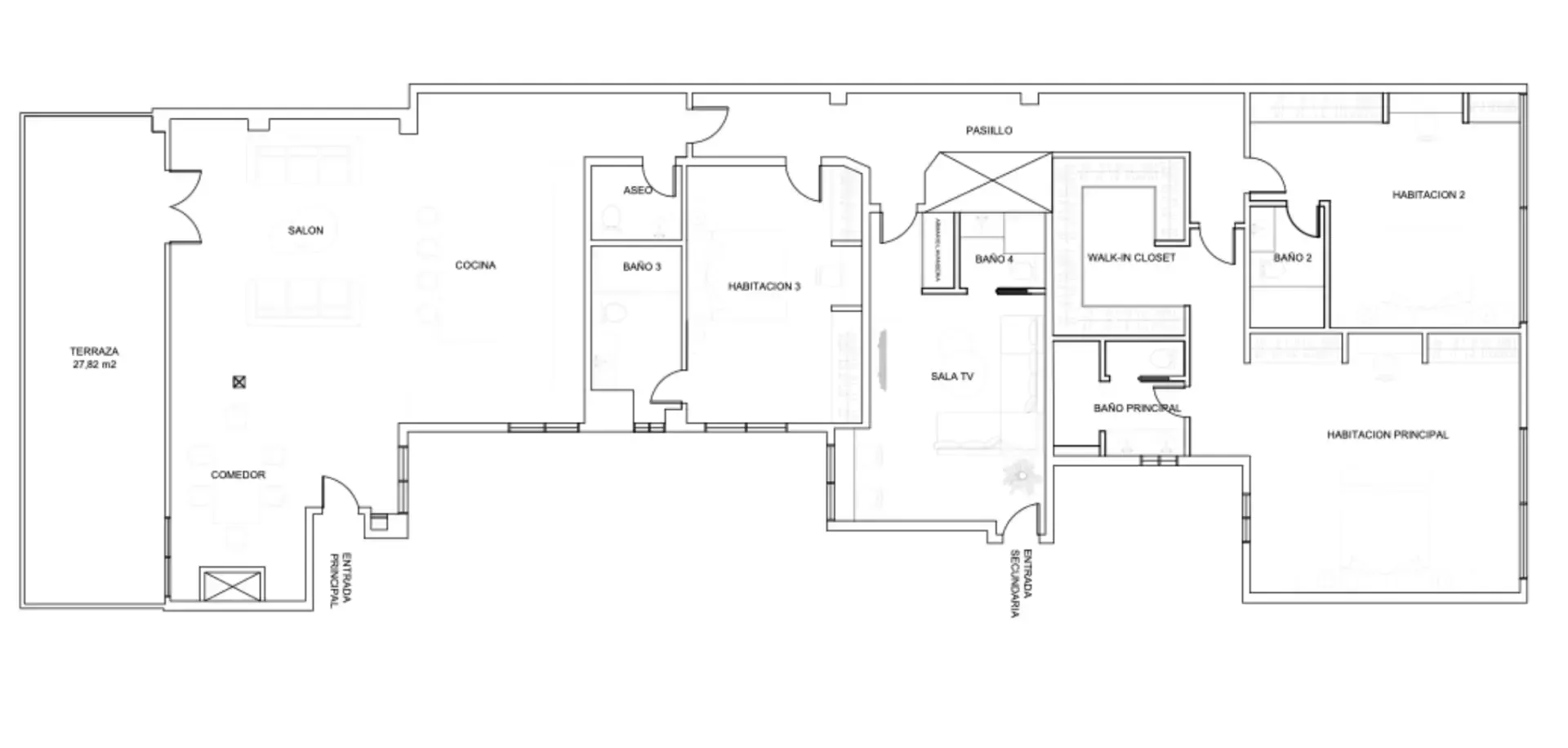
235 m2 / 4 Habitaciones
REF: gaz069AM
2.400.000 €
Olisson presenta este maravilloso piso de 235 m2 reformado a estrenar y con gran terraza en una de las mejores calles de Gaztambide.
La zona social destaca por la amplitud de su salón, del comedor y de la cocina, totalmente equipada, abierta al salón y con una gran isla central. En este área encontramos también un aseo de cortesía.
La zona de noche se compone de cuatro dormitorios en suite, uno de ellos pensado para ser utilizado como family room en caso de ser necesario y que cuenta además con entrada independiente. El dormitorio principal destaca por su gran tamaño y su estupendo walk-in closet.
La vivienda destaca por su maravillosa terraza exterior con bonitas vistas de la ciudad, un espacio luminoso y privilegiado para disfrutar todo el año.
La distribución de la vivienda separa claramente las zonas sociales de las privadas, aportando equilibrio y confort.
Gaztambide es un barrio con abundantes comercios y zonas de ocio , donde conviven el comercio de proximidad con grandes superficies como El Corte Inglés. En cuanto a zonas verdes, podemos disfrutar del parque de Santander y a poca distancia del parque del Oeste. Su completa red de transporte incluye las estaciones de metro Islas Filipinas , Argüelles, diversas paradas de autobus y el intercambiador de Moncloa. En el campo de las dotaciones, existe amplia oferta en infraestructura educacional, cuenta con escuelas infantiles, colegios y universidades.