
COMPRAR
Zonas
Tipo
Precio€
Dormitorios
TamañoM2

Castellana
278 m2 / 3 Habitaciones / 1 Plz de Garaje
REF: cas633VMA
3.000.000 €
Olisson Club gestiona la venta de esta vivienda de recién reformada con 3 dormitorios en suite en el barrio de Castellana. Se trata de una primera planta exterior en esquina completamente lista para entrar, y un proyecto de interiorismo singular.
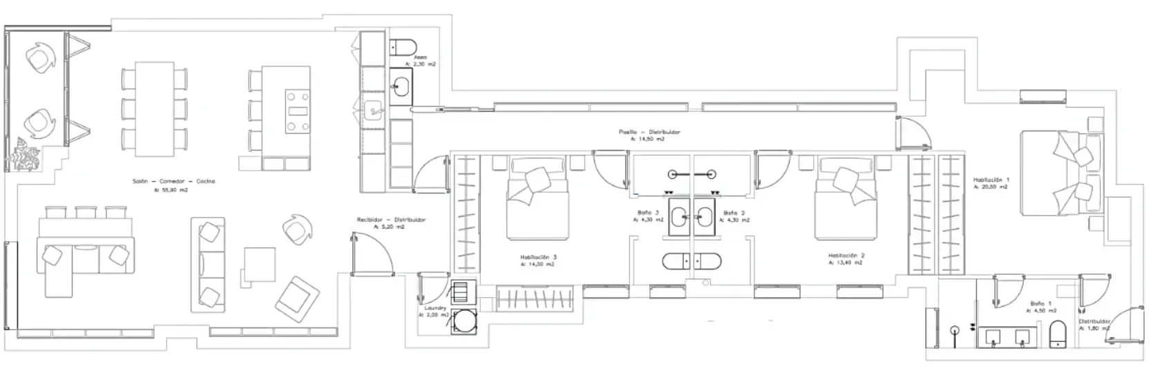
Sus 278 m² se distribuyen de la siguiente manera: accedemos a la casa por la zona de día, donde a través de un impresionante hall con aseo de cortesía y gabanero ocultos llegamos a un gran salón con mucha luz y varias zonas de estancia, pensado para recibir. El salón destaca por una zona de estar en la esquina del edificio, con vistas verdes espectaculares y una buena terraza conectada al salón. Desde aquí, podemos acceder a un espacio independiente a fachada que puede servir de gran family o despacho exterior. Desde el hall se accede también a la cocina, muy amplia, con una gran isla central y conectada con una zona de office y la zona de servicio, que cuenta con dormitorio y baño y acceso directo desde la puerta de servicio.
Si volvemos al hall, encontramos el distribuidor de la casa, desde el que accedemos a la zona de noche. Esta se compone de 3 grandes suites, todas exteriores. De entre ellas destaca la principal, que es muy amplia y cuenta con un buen vestidor y un gran baño, además de doble orientación.
La vivienda destaca por haber sido completamente rediseñada y reformada integralmente con muy buenas calidades de materiales. Esto, junto a una ubicación inmejorable y un cuidado interiorismo, hacen de ella una vivienda única, que se entrega además amueblada y cuenta con plaza de garaje y trastero en el edificio.
El edificio es moderno, de mediados de siglo. Cuenta con un buen portal representativo y portero, por lo que es muy cómodo. Se encuentra en el barrio de Castellana, en una localización muy bien conectada por transporte público, tanto a través del metro como de varias líneas de autobús.