
COMPRAR
Zonas
Tipo
Precio€
Dormitorios
TamañoM2

Jerónimos
342 m2 / 3 Habitaciones
REF: jer172MS
4.700.000 €
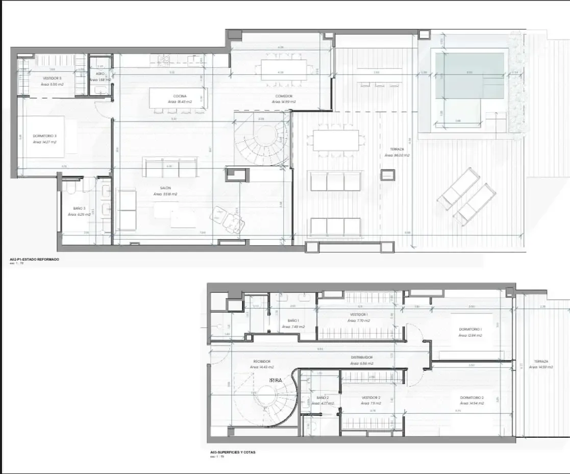
Olisson Club pone a su disposición este espectacular ático-dúplex a reformar, con dos terrazas de 16 y 84 metros y posibilidad de tres plazas de garaje en finca en el corazón del barrio de Jerónimos, con impresionantes vistas al Parque del Retiro.
El piso de 342 m2 con amplias y luminosas estancias ofrece numerosas posibilidades de reforma y crear una casa familiar y funcional, con tres dormitorios en suite y con vestidor, una amplia zona social de casi 70 metros, aseo, lavandería y la joya de la casa dos terrazas, una en cada planta de 15 y 86 metros.
El equipo de Olisson está formado por arquitectos e interioristas, por lo que no dude en ponerse en contacto con nosotros y le realizaremos una propuesta adaptada a sus necesidades.
La finca, de 1970 se encuentra en perfecto estado de conservación y cuenta con portero físico.
Existe la posibilidad de adquirir tres plazas de garaje en la misma finca.
La ubicación es excelente, a escasos metros del Retiro y con algunos de los mejores restaurantes de la ciudad en las calles más próximas. Un oasis de tranquilidad a menos de diez minutos caminando de la Puerta de Alcalá.