
COMPRAR
Zonas
Tipo
Precio€
Dormitorios
TamañoM2

Castellana
287 m2 / 4 Habitaciones
REF: cas634VMA
4.250.000 €
Olisson Club gestiona la venta de esta vivienda totalmente reformada a estrenar, ubicada en una segunda planta, en el corazón del Barrio de Castellana.
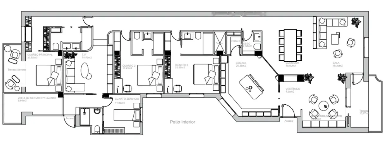
Con una superficie de más de 287m², esta propiedad ofrece una gran distribución con una reforma de lujo. Se distribuye en un amplio y señorial hall de entrada, un gran salón con ventanales exteriores y salida a terraza, dormitorio principal en suite con salida a terraza privada, dos dormitorios espaciosos con baño en suite, cuatro baños, una habitación de servicio con entrada independiente y una cocina de generosas dimensiones.
La zona de día goza de vistas despejadas a la calle principal, mientras que los dormitorios ofrecen un oasis de tranquilidad al dar a dos patios interiores con gran luminosidad y encanto arquitectónico.
El edificio conserva su elegancia clásica, con una impresionante fachada y un portal representativo. Su interior, con detalles originales de época, ofrece la posibilidad de modernizarlo manteniendo su esencia sofisticada.
Ubicado en el exclusivo barrio de Castellana, dentro del prestigioso distrito de Salamanca, este ático se encuentra en una de las zonas más deseadas de Madrid. Rodeado de majestuosos edificios de arquitectura clásica, combina el lujo residencial con una vibrante oferta comercial. A pocos minutos del Parque del Retiro y el centro de la ciudad, cuenta con una amplia oferta gastronómica, cultural y de ocio, además de excelentes conexiones de transporte.