
COMPRAR
Zonas
Tipo
Precio€
Dormitorios
TamañoM2

Ibiza
183 m2 / 4 Habitaciones
REF: ibi171VD
2.175.000 €
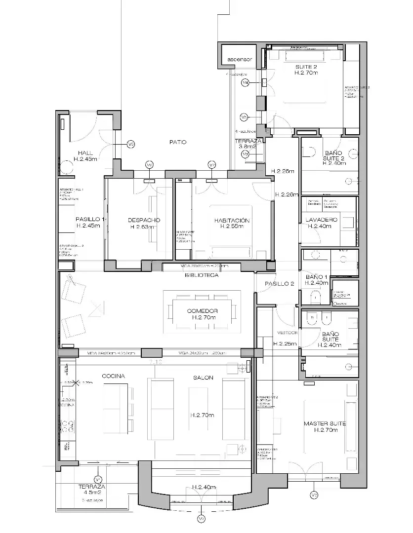
Olisson presenta este importante piso muy luminoso y proximo al Retiro.
En una cuarta planta, con 3 amplios ventanas al exterior y una terraza, tenemos este
piso de 183 m con una reforma con muchos detalles y calidades de lujo, totalmente amueblado.
Al entrar al recibidor, ya podemos apreciar la luz de la casa, que nos dirige a un armario
de abrigos con una zona de asiento para quien prefiera quitarse los zapatos.
Desde aqui podemos acceder a un gran despacho o cuarto dormitorio o continuar a la zona
de salones.
Primero un amplio espacio de biblioteca y comedor, y la siguiente zona de amplio salon y con
una importante zona de cocina con isla y salida a una hermosa terraza.
Ya hacia la zona de noche, tenemos 3 amplios dormitorios dobles, siendo dos de ellos en suite.
Dormitorio principal es exterior, con armarios empotrados y un gran baño.
Otro dormitorio en suite tambien de gran tamaño y un tercer dormitorio amplio con sus armarios.
El piso cuenta con calefaccion y AA por conductos.
Se destacan los acabados, tanto en los alicatados de los baños, como en los materiales utilizados
en la obra.
El edificio cuenta con portero fisico.
La zona de Retiro y en especial de Ibiza, muy proximo al Parque del Retiro, hace de esta zona muy
residencial.